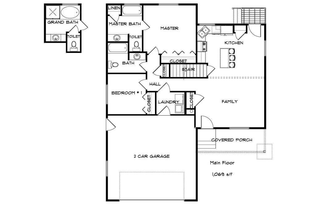
4 Bed 3 Bath 2138 Sqft Modular Home Model # 23555

$291,400