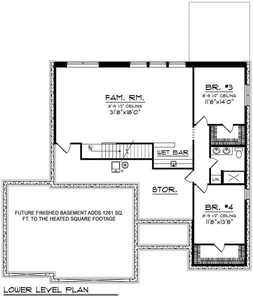
4 Bed 3 Bath 1703 Sqft Modular Home Model # 21808

$230,800