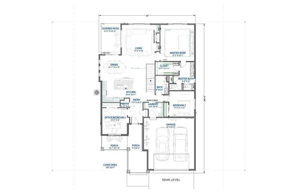
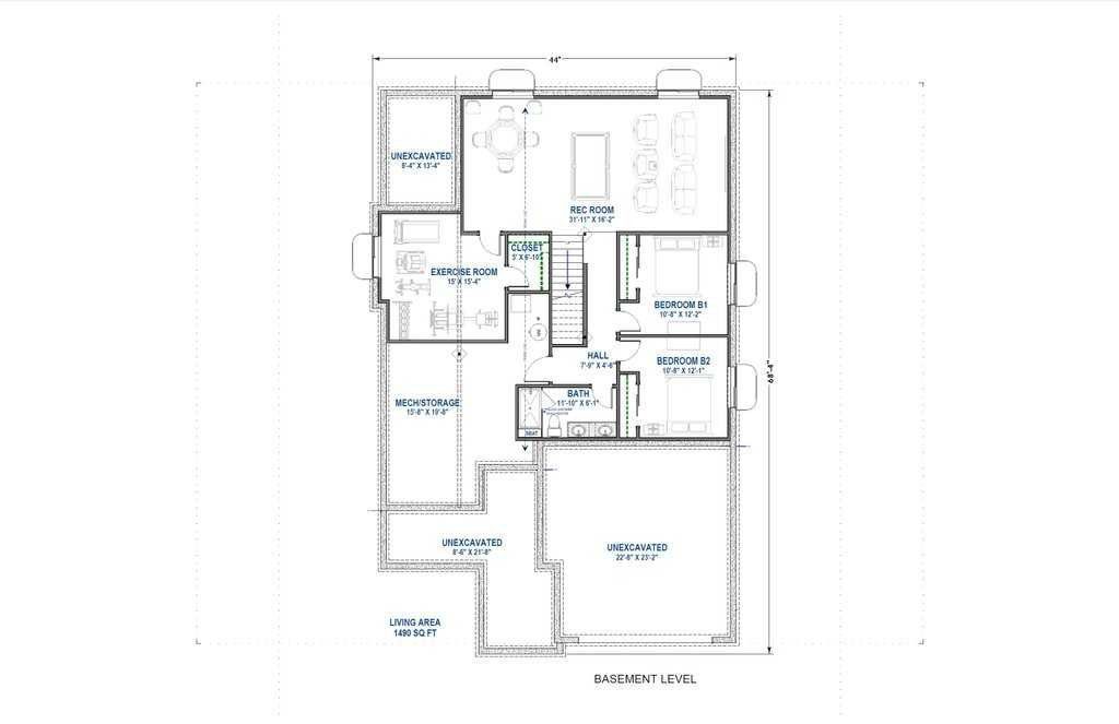
3 Bed 2 Bath 1807 Sqft Modular Home Model # 15453

$246,600