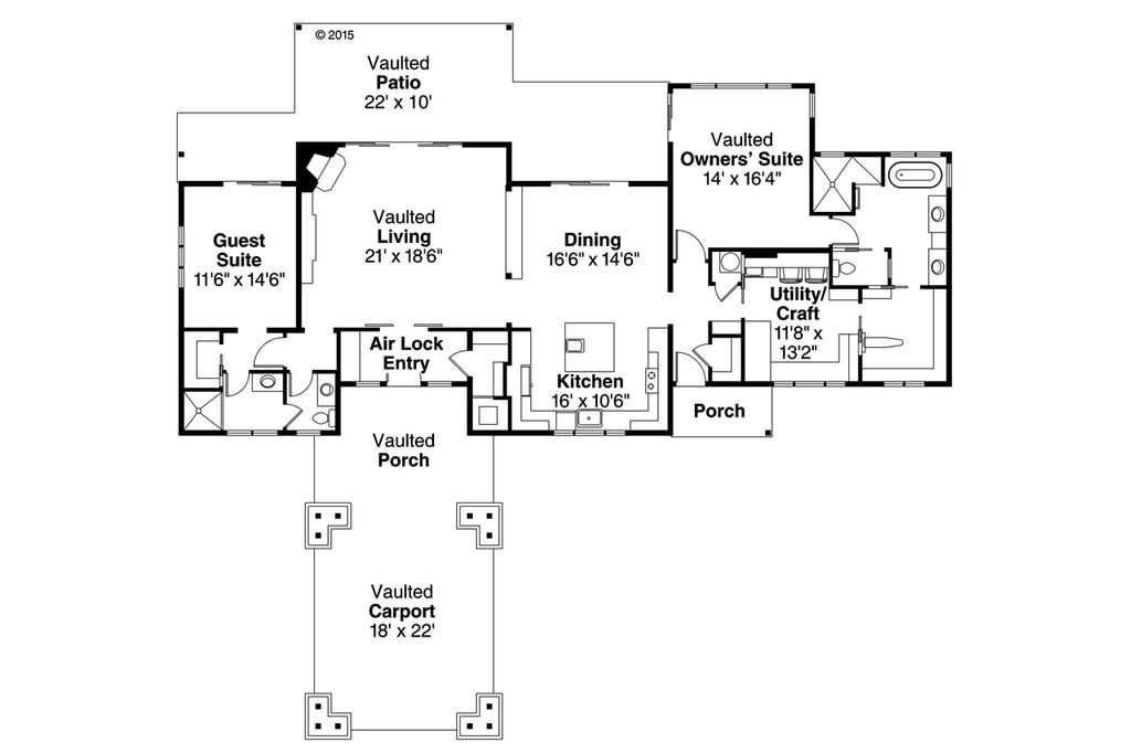
2 Bed 2 Bath 2127 Sqft Modular Home Model # 26161

$168,000

Out of stock