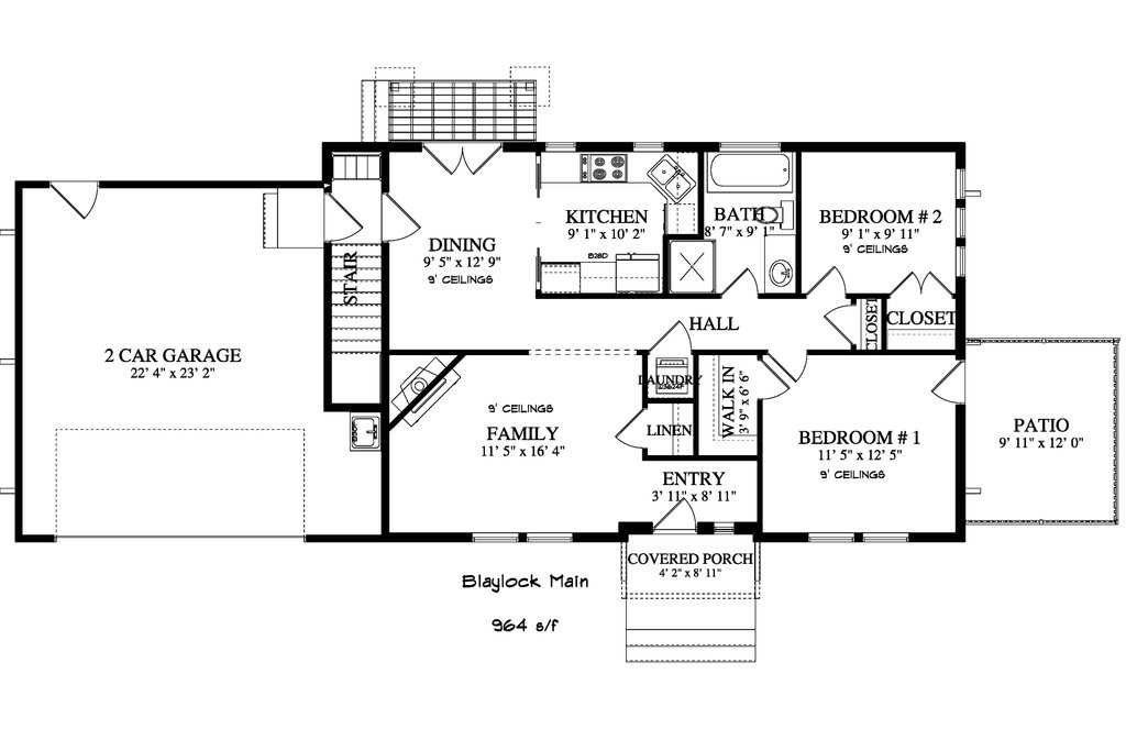
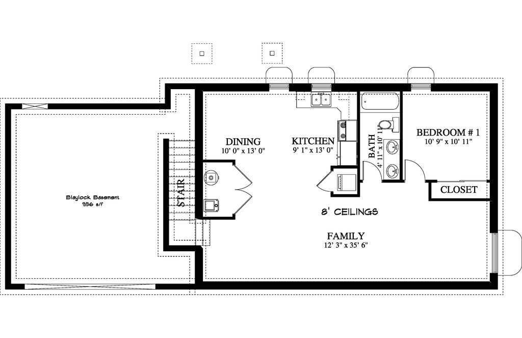
Introducing the stunning 2 Bed 2 Bath 1874 Sqft Modular Home Model # 20298 – the ultimate combination of luxury and functionality! This spacious home offers ample room for you and your family with two bathrooms and two bedrooms, providing the perfect layout for comfortable living.
With a generous 1874 square feet of living space, this modular home is perfect for entertaining guests or simply relaxing in style. Imagine hosting dinner parties in the open-concept kitchen and living area, or unwinding in the master bedroom suite complete with a private bathroom.
Experience the convenience and efficiency of modular home living with Model # 20298. Constructed with high-quality materials and expert craftsmanship, this home is built to last while also offering modern amenities and design features. From the sleek finishes to the spacious layout, this home truly has it all.
Don’t miss your chance to make this dream home a reality. Upgrade your lifestyle with the 2 Bed 2 Bath 1874 Sqft Modular Home Model # 20298 today!




















