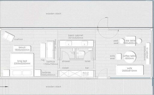
1 Bed 1 Bath 700 Sqft Modular Container Home Model # 22611

$64,200